HAND DRAWINGS AND RENDERINGS
RANDOM SKETCH UP
RANDOM COMPUTER RENDERINGS
TINY HOUSE PROJECT
For sophomore year we designed our own houses and drew them up in Auto CAD, we also did construction documents, renderings and an actual models of our houses.
SIGG PROJECT
This was a space planning assignment that we were given. The building was an existing building we had to put in offices, bathrooms, a cafeteria, conference room and several other spaces. We also had the assignment to hand render one of the spaces, I chose to do the cafeteria.
MELBOURNE AIR PROJECT For this project we had to take a pre-designed home and draw it up in sketch up, put in furniture, hand render it, and then put into photoshop to make it look more real.

Sketch Up Model

Hand Drawing

Rendering with out Photoshop

Rendering with Photoshop
OGDEN RIVER PROJECTThis group project was for Ogden City, they are planning an urban renewal to make Ogden a more welcoming city, and they wanted our feedback.
RANDOM SKETCH UP
RANDOM COMPUTER RENDERINGS
TINY HOUSE PROJECT
For sophomore year we designed our own houses and drew them up in Auto CAD, we also did construction documents, renderings and an actual models of our houses.
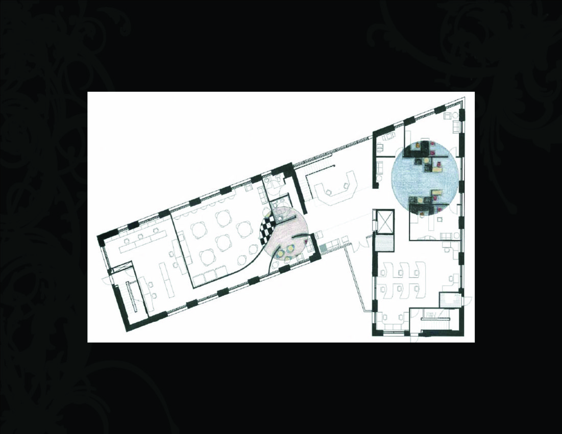
SIGG PROJECT
This was a space planning assignment that we were given. The building was an existing building we had to put in offices, bathrooms, a cafeteria, conference room and several other spaces. We also had the assignment to hand render one of the spaces, I chose to do the cafeteria.
MELBOURNE AIR PROJECT
![]() |
| Sketch Up Model |
![]() |
| Hand Drawing |
![]() |
| Rendering with out Photoshop |
![]() |
| Rendering with Photoshop |
![]() |
| Top View |
![]() |
| Commercial |
![]() |
| Mixed Use |
![]() |
| Low Density Housing |
![]() |
| High Density Housing |


































